STIRfri

make your fridays matter with a well-read weekend

Ramón Esteve Estudio transforms a former hospice into a university campus in Valencia

Catering to the city’s evolving needs, the studio steers away from a "pastiche" approach to restore the 1873-built neoclassical complex for the EU Turia Campus.

by Bansari PaghdarPublished on : Aug 09, 2025

Juan Bautista Romero (1807-72) was a prominent figure in 19th century Valencia, Spain, who amassed a fortune as a silk merchant and industrialist and ended up owning a majority of urban properties according to Valencia’s 1888 registry. After the tragic death of their only son in 1845, Romero and his wife Mariana Conchés Benet decided to donate all their assets, first to the city’s General Hospital and then to the creation and sustenance of the San Juan Bautista Asylum.

The former hospice has recently been renovated into the Turia Campus for Universidad Europea de Valencia (European University of Valencia) by Spanish architecture firm Ramón Esteve Estudio. Situated between the Turia Gardens—formerly the Turia riverbed—and the Art Modern Institute Museum of Valencia, the institute is in close proximity to several cultural nodes of the city. “Over the years, the building has witnessed many transformations. For decades, it was managed by the Daughters of Charity of Saint Vincent de Paul—who offered shelter and education to disadvantaged children—and later, it became a campus for the Catholic University of Valencia,” Ramón Esteve Estudio tells STIR. Originally designed by architect Sebastián Monleón, who has to his credit the conception of Plaza de Toros, deemed as one of the largest bullrings in Spain, the neoclassical architecture is a protected heritage site, featuring two courtyards and a chapel.

  • Originally designed by architect Sebastián Monleón, the building required a comprehensive restoration for damage repairs and reinforcement of the old structure to meet contemporary needs | Turia Campus | Ramón Esteve Estudio | STIRworld
    Originally designed by architect Sebastián Monleón, the building required a comprehensive restoration for damage repairs and reinforcement of the old structure to meet contemporary needs Image: Alfonso Calza
  • The former iron columns and railings in the courtyards and the Nolla ceramic tiles on the cloister floor have been restored | Turia Campus | Ramón Esteve Estudio | STIRworld
    The former iron columns and railings in the courtyards and the Nolla ceramic tiles on the cloister floor have been restored Image: Alfonso Calza
  • The building’s layout, informed by the two courtyards and a series of cloisters, adapts well to its new programme and highlights the original surface treatments | Turia Campus | Ramón Esteve Estudio | STIRworld
    The building’s layout, informed by the two courtyards and a series of cloisters, adapts well to its new programme and highlights the original surface treatments Image: Alfonso Calza

The eponymous studio, founded by Spanish architect Ramón Esteve in 1991, is headquartered in Valencia and has offices in Madrid, Mexico City and Abu Dhabi. Offering projects that exemplify 'a pursuit for essence, clarity, simplicity, order, and harmony', their portfolio spans public spaces, cultural and healthcare architectures, private offices, hotels and restaurants. The practice has undertaken several rehabilitation projects over the years which include Bombas Gens (2018), a 1930s Art Deco industrial building in Valencia transformed into a multipurpose art centre with a social impact. Ongoing projects of the firm include the development of their wining proposals for the Raimon Centre for Cultural Activities (CRAC) and the Rodes Industrial Park in the Spanish cities of Xàtiva and Alicante respectively.

The restored neoclassical interiors reveal intricate wooden craftsmanship | Turia Campus | Ramón Esteve Estudio | STIRworld
The restored neoclassical interiors reveal intricate wooden craftsmanship Image: Alfonso Calza

Drawing on their multifaceted expertise, the studio has preserved the architecture and interior elements of the hospice such as its facade and flooring while carefully stripping away the layers of previous renovations to uncovering the original surfaces underneath. “Structurally, we undertook a comprehensive restoration to repair any damage or deterioration, reinforcing the building to ensure its longevity. This included addressing pathologies that had developed over time and bringing the entire structure up to modern safety standards,” reveals the studio. In spaces without any considerable details, new ceilings and interior wall linings have been introduced to accommodate the functional and technological needs of the programme.

  • New ceilings and interior wall linings are introduced to accommodate the institutional programme | Turia Campus | Ramón Esteve Estudio | STIRworld
    New ceilings and interior wall linings are introduced to accommodate the institutional programme Image: Alfonso Calza
  • Spaces that were no longer relevant in the new programme, such as the chapel, have been carefully restored and converted into study areas | Turia Campus | Ramón Esteve Estudio | STIRworld
    Spaces that were no longer relevant in the new programme, such as the chapel, have been carefully restored and converted into study areas Image: Alfonso Calza

“The entire facade is meticulously conserved, maintaining its neoclassical character, including the Corinthian columns and the triangular pediment with allegorical reliefs,” the studio tells STIR. The iron columns and railings in the courtyards and the Nolla ceramic tiles in the cloisters are restored as, what the design team deems, an “important legacy of Valencian modernism”. What once was a chapel is now transformed into a study room, the space revealing original stucco details and frescoes on walls and ceilings. Further adding to the architectural character of the building, the original wooden craftsmanship of several doors, window frames and shutters has been carefully restored.

  • The fenestrations of the contemporary annex complement the facade of the heritage architecture | Turia Campus | Ramón Esteve Estudio | STIRworld
    The fenestrations of the contemporary annex complement the facade of the heritage architecture Image: Alfonso Calza
  • The building establishes an identity distinct from the old building, introducing large glass openings and spaces flushed with natural light | Turia Campus | Ramón Esteve Estudio | STIRworld
    The building establishes an identity distinct from the former building, introducing large glass openings and spaces flushed with natural light Image: Alfonso Calza

To the west of this complex, the architects introduced a new building with a rectangular footprint to accommodate more classrooms. Moreover, the volumes of the annex are intently designed to complement the scale and architecture of the existing building through a clean, contemporary design. “Compositional elements such as the rhythm of solid and void, the arrangement of openings and the base orders were carefully referenced to establish a visual connection with the neoclassical architecture. At the same time, the new annex was conceived with a distinctly modern identity, clearly expressing its own time while acknowledging the heritage of its context,” the architects explain.

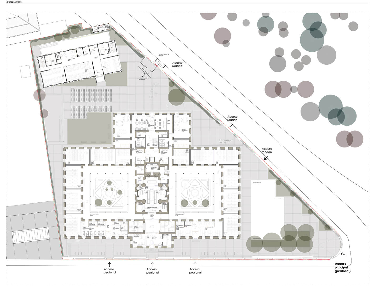
  • Site plan | Turia Campus | Ramón Esteve Estudio | STIRworld
    Site plan Image: Courtesy of Ramón Esteve Estudio
  • Sections showing the restored cloisters and classrooms | Turia Campus | Ramón Esteve Estudio | STIRworld
    Sections showing the restored cloisters and classrooms Image: Courtesy of Ramón Esteve Estudio

The facade of the annex draws from the materiality of the former hospice, interpreting its key compositional tenets such as proportions, rhythm, alignment and flow of spaces. The architects prioritised modern solutions and technology for the new institutional building, steering away from replicating or imitating elements of the historic complex. “Our approach deliberately avoids a nostalgic or “pastiche” solution. Rather than copying the compositional codes of the original, we focused on establishing a dialogue between the old and the new,” affirms the practice.

  • The north-south elevation shows the new annex in relation to the historic building | Turia Campus | Ramón Esteve Estudio | STIRworld
    The north-south elevation shows the new annex in relation to the historic building Image: Courtesy of Ramón Esteve Estudio
  • The contemporary architectural addition draws from the proportions, rhythm and alignment of the heritage building | Turia Campus | Ramón Esteve Estudio | STIRworld
    The contemporary architectural addition draws from the proportions, rhythm and alignment of the heritage building Image: Courtesy of Ramón Esteve Estudio

In a way, the story of the building mirrors the story of the city itself. Just as Valencia has a history of preserving its infrastructure, residential and public architecture, the site too has witnessed several transformations over the years—from Romero’s service to the studio’s sensitive rehabilitation—contributing to the community’s changing needs over the years. The project reinforces Valencia’s hybrid urban character in coherence with the city’s plans for historical preservation through thoughtful adaptive reuse interventions. 

Project Details

Name: Universidad Europea | Turia Campus
Location: C/ de Guillem de Castro 175, 46008 Valencia, Spain
Client: Universidad Europea (European University)
Architect: Ramón Esteve Estudio
Gross floor area (heritage building): 5,406 sq m
Gross floor area (new annex): 1,753 sq m
Site area: 7,903 sq m
Year of Completion:2024

What do you think?

About Author

Recommended

LOAD MORE
see more articles
7183,7184,7185,7186,7187

make your fridays matter

SUBSCRIBE
This site uses cookies to offer you an improved and personalised experience. If you continue to browse, we will assume your consent for the same.
LEARN MORE AGREE
STIR STIRworld Ramón Esteve Estudio restores the 1873-built former hospice into the European University of Valencia’s Turia Campus, introducing a new building in dialogue with the heritage one | Turia Campus | Ramón

Ramón Esteve Estudio transforms a former hospice into a university campus in Valencia

Catering to the city’s evolving needs, the studio steers away from a "pastiche" approach to restore the 1873-built neoclassical complex for the EU Turia Campus.

by Bansari Paghdar | Published on : Aug 09, 2025