STIRfri

make your fridays matter with a well-read weekend

Modularity and an inner city charm inform Splinter Society’s tower of light

The Newburgh Light House in Melbourne’s Auburn village embodies a clean expression of modularity to compose an alternative to the area’s existing housing stock.

by Bansari PaghdarPublished on : Jul 01, 2025

Hawthorn, an inner-city suburb located east of Melbourne’s CBD, offers a blend of residential areas, parks, trails and cultural offerings. The private residences exude the charm of Victorian architecture, which was a common sight in Australia before modernism spread across the continent in the second half of the 20th century. A similar architectural language persists in the heart of Hawthorn, where the oldest shopping district of Melbourne, Auburn Village, features streets packed with Victorian-style cafes, restaurants and retail spaces. Contrary to this lexicon, Australian architecture and interior design practice Splinter Society introduces a towering residential building in the neighbourhood. Situated adjacent to the 1916-built, VicTrack-managed Auburn railway station, the Newburgh Light House sits adjacent to a pedestrian thoroughfare that connects the commuters to the shopping street. Constructed on an ‘almost unbuildable 150 sqm site', as per the design team, the mini tower typology with a lantern-like appeal comprises 10 storeys, programming single-floor apartments, parking, service and storage areas. “An alternative to the area’s existing housing stock,” as Splinter Society tells STIR, the project is conceived as "a potential downsize option for locals wanting convenience and low-maintenance living without sacrificing connection to their existing community.”

  • Built on a compact site of 150 sqm, the project features single-floor apartments as a downsizing alternative, also catering to shared occupancy buyers | Newburgh Light House | Splinter Society | STIRworld
    Built on a compact site of 150 sqm, the Newburgh Light House features single-floor apartments as a downsizing alternative, also catering to shared occupancy buyers Image: Timothy Kaye
  • A view showing the ten-storied housing with a railway station in the foreground | Newburgh Light House | Splinter Society | STIRworld
    A view showing the ten-storied housing with a railway station in the foreground Image: Timothy Kaye

Led by Asha Nicholas and Chris Stanley, Melbourne-based Splinters Society creates bespoke spaces that are grounded in the principles of environmental sustainability and functionality. The studio’s oeuvre includes workspace design, hospitality and residential projects, where it often collaborates with stakeholders to design experimentally and cater to the site-specific needs. A closer look at their previous projects featured by STIR include Colonnade House and Host House; one could draw parallels between the inseparability of facade design with the structural core of the buildings. For the Newburgh Light House, the architects employed a similar approach, designing an intervention where clean lines, simple forms and a cohesive materiality permeate throughout the spatial fabric.

  • The towering structure captures a sense of an ‘inner-city’ | Newburgh Light House | Splinter Society | STIRworld
    The towering structure captures a sense of an ‘inner-city’ Image: Timothy Kaye
  • The ground level features a small coffee shop, the footprint of which spills into an outdoor seating area | Newburgh Light House | Splinter Society | STIRworld
    The ground level features a small coffee shop, the footprint of which spills into an outdoor seating area Image: Timothy Kaye

The building accommodates approximately 21 people across seven apartments. Calling it “a beacon of light”, the architects place an emphasis on the towering nature of the building and its role in transforming the architectural landscape of the neighbourhood.

With the railway track to its North and no adjacent street, factors such as building and fire regulations, equitable light and structural stability inform the compact residential architecture. “The building functions like a mini-tower, with prefabricated elements that can be craned into place—an efficient response to the tight and complex site,” the architects share. The project, as per the design team, embodies “modularity and clean, simple expression”, using materiality at the forefront of the intervention.

Diffused natural light illuminates the apartment interiors, rendering the glass block walls as one of the most important design element in the building | Newburgh Light House | Splinter Society | STIRworld
Diffused natural light illuminates the apartment interiors, rendering the glass block walls as one of the most important design element in the building Image: Timothy Kaye

The ground level is made from in situ concrete, chosen for its ability to withstand accidents such as a train derailment. An outdoor seating space defines the approach to the site, providing separate entrances for a small coffee shop on the ground floor and the apartment complex above. Acting as a respite for the commuters, the commercial design engages with the urban fabric to create an active public space. Additionally, the ground level features rooms for essential services and a stacked parking system that utilises parts of the basement and the first level. Integrating additional storage spaces for residents, the first level caters to students and those seeking apartments with shared occupancy.

The apartments offer views of the urban landscape through the glass screens | Newburgh Light House | Splinter Society | STIRworld
The apartments offer views of the urban landscape through the glass screens Image: Timothy Kaye

Hierarchy plays a pivotal role in the project’s spatial design, facilitating an elevated living experience despite the limited footprint of the site. The common spaces are laid out in an open plan, overlooking the railway tracks in the north. The dining area occupies the quaint northeast corner of the house, creating a secluded, serene space flooded with natural light. Private areas such as bedrooms and bathrooms are situated on the south, away from the railway track, ensuring privacy and sensorial relief from the noise.

  • Splinter Society’s interior design places the furniture in dialogue with the spatial fabric | Newburgh Light House | Splinter Society | STIRworld
    Splinter Society’s interior design places the furniture in dialogue with the spatial fabric Image: Timothy Kaye
  • The private areas are located on the south, away from the railway track, ensuring privacy and relief from the noise | Newburgh Light House | Splinter Society | STIRworld
    The private areas are located on the south, away from the railway track, ensuring privacy and relief from the noise Image: Timothy Kaye
  • The open play layout of the common areas offers streamlined movement within the spaces | Newburgh Light House | Splinter Society | STIRworld
    The open play layout of the common areas offers streamlined movement within the spaces Image: Timothy Kaye
  • With materials such as glass block panels and tiles, the project echoes a grid-like geometry | Newburgh Light House | Splinter Society | STIRworld
    With materials such as glass block panels and tiles, the project echoes a grid-like geometry Image: Timothy Kaye

The apartment design features recessed glazing that allows ample natural light and ventilation entering the apartments, alongside providing fire resistance. The glass block panels on the north and south facades facilitate an ever-changing play of light within the interiors, establishing a strong visual language with its grid layout.

“The grid is also referenced through timber panelling and stone finishes, creating a consistent dialogue between structure, façade and interior,” the architects tell STIR. Carefully curated interior spaces evoke a bespoke built environment, placing the furniture and residential interiors in dialogue with the architecture through materiality, geometry and elemental forms.

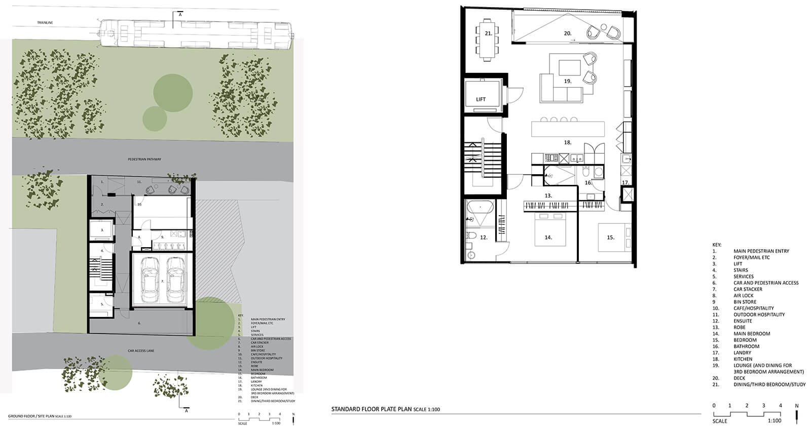
  • Ground level plan; typical floor plan | Newburgh Light House | Splinter Society | STIRworld
    Ground level plan; typical floor plan Image: Courtesy of Splinter Society
  • Elevational and sectional drawing | Newburgh Light House | Splinter Society | STIRworld
    Elevational and sectional drawing Image: Courtesy of Splinter Society

For the Newburgh Light House, Splinter Society employs symmetry and perceived lightness of the glass blocks, contributing to a distinct aesthetic quality. Its design, as per the architects, is driven by “a clear expression of modularity”, and follows a rhythm of its own. The identity of the building perhaps lies in its material fabric that lends it the image of a glowing lantern towering above the neighbourhood.

What do you think?

About Author

Recommended

LOAD MORE
see more articles
7187,7188,7189,7190,7191

make your fridays matter

SUBSCRIBE
This site uses cookies to offer you an improved and personalised experience. If you continue to browse, we will assume your consent for the same.
LEARN MORE AGREE
STIR STIRworld Newburgh Light House situated in the neighbourhood of Auburn Village in Melbourne, Australia | Newburgh Light House | Splinter Society | STIRworld

Modularity and an inner city charm inform Splinter Society’s tower of light

The Newburgh Light House in Melbourne’s Auburn village embodies a clean expression of modularity to compose an alternative to the area’s existing housing stock.

by Bansari Paghdar | Published on : Jul 01, 2025