STIRfri

make your fridays matter with a well-read weekend

Sona Reddy Studio’s design of the Clay residence in Hyderabad revels in contrasts

A floating staircase, Brutalist coffer ceiling and sculptural geometricity of interlocked volumes are among the highlights of this three-storied home in Hyderabad, India.

by Zohra KhanPublished on : Jul 24, 2024

A bricolage of Brutalist and Art Deco influences, grotto-like pockets and enormous light-filled living quarters—Clay is an 11,000 square feet residence designed by Indian architect Sona Reddy and her eponymous Hyderabad-based studio. The three-storied home, located in the city’s Jubilee Hills neighbourhood, gives a riveting spin to a former structure that required revision of its blueprint with new services and spatial additions, as well as a newfound identity. Reddy’s studio cleverly employed visual porosity, material versatility and effects of focus and contrast through a layered use of objects and artefacts. Having previously designed the Telugu Medium—a rosy brick lined restaurant with elaborate vaults and domes and an ensuing aesthetic capturing the soul of the Deccan; this project also is profuse in its use of defining architectural elements and a language locating multiplicity of expressions.

  • Glimpses of the home’s exterior | Clay | Sona Reddy Studio | STIRworld
    Glimpses of the home’s exterior Image: Pankaj Anand
  • Breeze blocks punctuate the southern and western fronts of the house | Clay | Sona Reddy Studio | STIRworld
    Breeze blocks punctuate the southern and western fronts of the house Image: Pankaj Anand
  • The solid geometricity of the exterior is softened by the landscape design | Clay | Sona Reddy Studio | STIRworld
    The solid geometricity of the exterior is softened by the landscape design Image: Pankaj Anand

Established in 2014, Sona Reddy Studio’s oeuvre covers residential, retail, workspaces and hospitality projects. The practice aspires to "deliver the quintessential" with every piece of work, "concocting immaculate spaces with a copacetic configuration of functions." With Clay, the home of clients Sreeram Vanga and Shreya Reddy, the studio redefined “familial warmth while maintaining a rooted design ethos, resonating with both past and future narratives,” Reddy told STIR. Peering above rows of old houses that dot the residential neighbourhood, Clay’s deft massing of rust red, beige and dark grey geometries are softened by plenty of greens gracing the site and eclectic apertures punctuating its façade. From lattice screens and breeze blocks to rows of holes in the exterior walls and narrow extruded clearings, the façade is animated by different channels that allow the house to “almost respire in real time,” as per architect Reddy.

Entrance to the ground floor| Clay | Sona Reddy Studio | STIRworld
Entrance to the ground floor Image: Pankaj Anand
  • Channapatna Avian figurines adorning one of the dining area walls | Clay | Sona Reddy Studio | STIRworld
    Channapatna Avian figurines adorning one of the dining area walls Image: Pankaj Anand
  • The double height family dining space features cane-back furniture, granite flooring and lofty fenestrations opening onto the landscape | Clay | Sona Reddy Studio | STIRworld
    The double-height family dining space features cane-back furniture, granite flooring and lofty fenestrations opening onto the landscape Image: Pankaj Anand

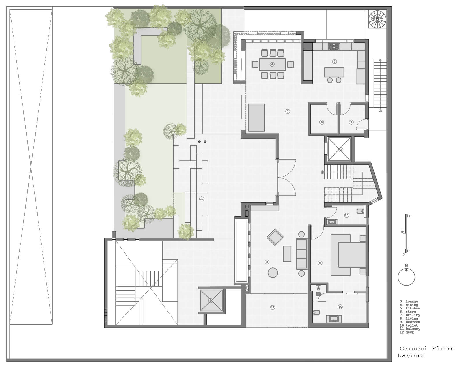
"The design of the monolithic form," Reddy continues, “not only adds artisanal gravitas but also allows for natural ventilation, contributing to a climate-responsive structure.” The seeming brutalist nature of the exteriors is taken over by a curated palette of vernacular and contemporary influences. The stately double-height ground floor houses the family’s living and dining space, a guest bedroom and an outdoor deck. A riveting collection of objects dot the floor, creating a sense as if each space has been crafted with a soul of its own. From cane-back chairs in the lounge and curated art pieces which include an installation of Channapatna Avian figurines gracing one of the dining area walls, to vintage chandeliers and bespoke bone inlay cabinets spread about, the local artistry, craftsmanship and culture resonate in every corner of the space.

  • A sculpturesque floating staircase leads to the first floor | Clay | Sona Reddy Studio | STIRworld
    A sculpturesque floating staircase leads to the first floor Image: Pankaj Anand
  • The three-dimensional volume of the staircase descending to the basement level sports a series of punctures on the wall for the ingress of natural light | Clay | Sona Reddy Studio | STIRworld
    The three-dimensional volume of the staircase descending to the basement level sports a series of punctures on the wall for the ingress of natural light Image: Pankaj Anand

A functional and aesthetic focal point of the house is its sculptural staircases, leading to the upper floors as well as to the basement den. While the former features grotto-inducing dark grey plaster walls, floating treads and a graphic touch to the granite stair surface, the latter is a large three-dimensional volume ingeniously moulded to cover structural elements. Flushed with natural light, the stairwell sports a series of little apertures that punctuate one of its adjoining cement walls.

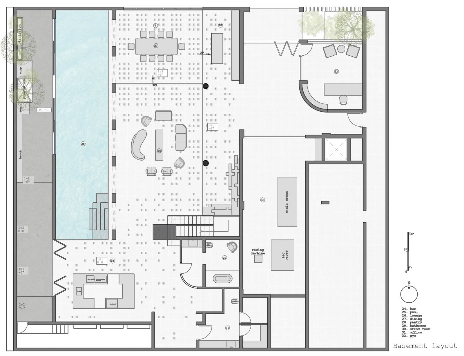
  • The basement level features a large pool, family dining, gym and play area | Clay | Sona Reddy Studio | STIRworld
    The basement level features a large pool, family dining, gym and play area Image: Pankaj Anand
  • A coffered ceiling in a deep sepia tone strikes a contrast with the cooler whites and greys of the lime plaster walls | Clay | Sona Reddy Studio | STIRworld
    A coffered ceiling in a deep sepia tone strikes a contrast with the cooler whites and greys of the lime plaster walls Image: Pankaj Anand

Traversing the luminous stairwell, as one arrives in the basement, the space contrary to the typical dark quarters of the house, reveals a naturally lit recreational hotspot of the family. An elaborate lounge space, dining, office, gym and play area have on their other side a vast pool space partially veiled by a wall featuring large recurring arches. A coffered ceiling in a deep sepia tone strikes a contrast with the cooler whites and greys of the lime plaster walls and the emerald blue of the pool surface. The space receives natural light through a lofty glass fenestration that lines one of the pool walls and opens onto a court adjoining the space.

  • The interiors offer a fusion of vernacular and contemporary touches | Clay | Sona Reddy Studio | STIRworl
    The interiors offer a fusion of vernacular and contemporary touches Image: Pankaj Anand
  • A bedroom within Clay | Clay | Sona Reddy Studio | STIRworld
    A bedroom within Clay Image: Pankaj Anand

Speaking of these variable openings that puncture the built volume from outside in, Reddy shares, “The placed openings facilitate natural ventilation and light, making the building a living, breathing entity. The interplay of light and shade created by these openings adds a playful character to the interiors, transforming the spaces within through the course of the day.”

  • Basement plan| Clay | Sona Reddy Studio | STIRworld
    Basement plan Image: Courtesy of Sona Reddy Studio
  • Ground floor plan| Clay | Sona Reddy Studio | STIRworld
    Ground floor plan Image: Courtesy of Sona Reddy Studio
  • Basement sections| Clay | Sona Reddy Studio | STIRworld
    Basement sections Image: Courtesy of Sona Reddy Studio

The upper floors of the house are resolved as the private area of the family, constituting a prayer room, children’s bedroom, study and an ancillary bedroom on the first floor and a lounge, family room and a master bedroom on the second floor. While each space within Clay is marked by a style of its own, the overall design language boasts a synergy of cohesion. “The design ethos," Reddy says, “emphasises grounded materiality, prominently featuring natural stones, gilded accents and subtle monotones throughout the residence. This choice creates a plush yet understated environment that resonates with both comfort and luxury.”

In crafting a flavour of domesticity, where the family could cherish their roots while remaining connected to the feeling of moving forward with time, Sona Reddy studio has put forth a building that revels in contrasts. And the architectural joy it elicits.

What do you think?

About Author

Recommended

LOAD MORE
see more articles
7201,7202,7203,7204,7205

make your fridays matter

SUBSCRIBE
This site uses cookies to offer you an improved and personalised experience. If you continue to browse, we will assume your consent for the same.
LEARN MORE AGREE
STIR STIRworld Clay | Sona Reddy Studio | STIRworld

Sona Reddy Studio’s design of the Clay residence in Hyderabad revels in contrasts

A floating staircase, Brutalist coffer ceiling and sculptural geometricity of interlocked volumes are among the highlights of this three-storied home in Hyderabad, India.

by Zohra Khan | Published on : Jul 24, 2024