STIRfri

make your fridays matter with a well-read weekend

Raw House by Order Matter is a retreat from excess amid dense Seoul

A meditation on spatial clarity, the mixed-use development prioritises exposed material finishes, minimal design and adaptable spaces.

by Bansari PaghdarPublished on : Dec 25, 2025

“Seoul is a city of incredible energy and visual noise, a place where architecture often competes to be seen. We wanted to create a counterpoint to that,” London and Seoul-based practice Order Matter told STIR about their project, The Raw House. A mixed-use development comprising a cafe, residential apartments and a penthouse that also serves as a workplace, the building is located on the east of Seoul, South Korea. It features a visually uncluttered facade and a distinct ‘spatial clarity’ that sets it apart from other mixed-use interventions in the area. Despite being situated in the midst of a dense urban landscape, the mixed-use architecture offers a sensorial experience while forming connections with nature and the very built fabric it is composed of.

  • The Raw House is oriented towards nature while remaining concealed from the city | Raw House | Order Matter | STIRworld
    The Raw House is oriented towards nature while remaining concealed from the city Image: Simone Bossi
  • The residential architecture features exposed concrete, stone and timber forms with minimal joints | Raw House | Order Matter | STIRworld
    The residential architecture features exposed concrete, stone and timber forms with minimal joints Image: Simone Bossi

The residential architecture features exposed concrete, stone and timber in its interior design, prioritising an ‘honest presence’. The surfaces appear as singular forms due to a minimised number of joints, which enables a sense of visual and material continuity across the spaces. According to Order Matter, the residential design does not perform, but simply supports, creating a grounding presence that values human interaction. When asked about the distinct approach and qualities of the concrete architecture, the Korean architecture practice opens up to STIR about spatial frameworks and ‘doing less, but with greater care’.

  • Prioritising an ‘honest presence’, the building embodies a visual and material continuity across its spaces | Raw House | Order Matter | STIRworld
    Prioritising an ‘honest presence’, the building embodies a visual and material continuity across its spaces Image: Simone Bossi
  • Communal living areas and the kitchen face south to allow direct natural light | Raw House | Order Matter | STIRworld
    Communal living areas and the kitchen face south to allow direct natural light Image: Simone Bossi

Bansari Paghdar: The Raw House strips architecture down to its essentials, prioritising spatial clarity over visual excess. What prompted you to take the ‘doing less, but with greater care’ approach in a city like Seoul, where density and display often dominate?

Order Matter: The Raw House is a retreat from excess, a space where life can be lived quietly, with intention. By doing less, we create room for the essentials to come into focus: the quality of light, the rhythm of movement, the feeling of materials. The decision to build with restraint is also a way of resisting the pressure to perform. We wanted to offer a home that is not about display, but about presence, a place where clarity and care can shape daily life.

  • The kitchen is one of the few spaces in the building to feature built-in furniture, which wraps around the columns to create a peninsula | Raw House | Order Matter | STIRworld
    The kitchen is one of the few spaces in the building to feature built-in furniture, which wraps around the columns to create a peninsula Image: Simone Bossi
  • Since the spatial hierarchy for the adaptable architecture is not fixed, the users play a crucial role in assigning roles to the spaces | Raw House | Order Matter | STIRworld
    Since the spatial hierarchy for the adaptable architecture is not fixed, the users play a crucial role in assigning roles to the spaces Image: Simone Bossi

Bansari: The project foregrounds materials in their raw state. Beyond aesthetics, what emotional or sensory qualities do these untouched surfaces attempt to bring to everyday living experience?

Order Matter: Leaving materials in their raw state allows them to speak honestly. The tactility of a sanded concrete floor, the subtle grain of timber, the coolness of exposed steel, these sensations root the inhabitant in their environment. There is a grounding quality in encountering materials as they are, without ornament. It slows you down. It reminds you that you are touching something real, something that will weather and change with you over time. We see this as a way to bring dignity to everyday life, by letting the house register the passage of time rather than hiding it behind layers of finish.

The penthouse offers views of the urban landscape, featuring a green terrace and workspaces | Raw House | Order Matter | STIRworld
The penthouse offers views of the urban landscape, featuring a green terrace and workspaces Image: Simone Bossi

Bansari: Orientation plays a crucial role, with southern views opening to nature and northern façades buffering the street. Which factors informed the orientation and spatial hierarchy of the house? What part do the residents play in it?

Order Matter: The site is positioned between a busy road and a line of trees, so the house was organised to turn its face to nature and its back to the city. We placed the main living spaces towards the south, where they open to light, air and the changing seasons. Service spaces and more private functions anchor the northern edge, acting as a buffer against noise. The hierarchy is not fixed, however. The residents play a crucial role in animating the house. They decide how to occupy each zone, how to move between light and shadow, openness and enclosure. The architecture simply frames these possibilities.

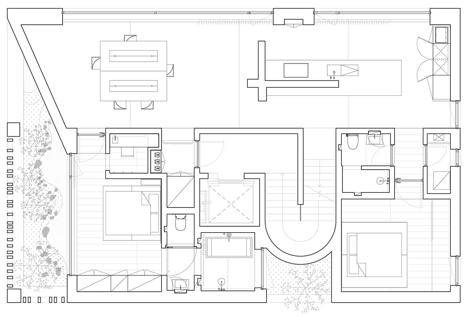
  • First-level plan | Raw House | Order Matter | STIRworld
    First-level plan Image: Courtesy of Order Matter
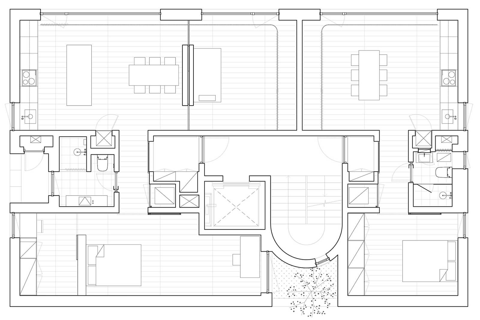
  • Second-level plan | Raw House | Order Matter | STIRworld
    Second-level plan Image: Courtesy of Order Matter
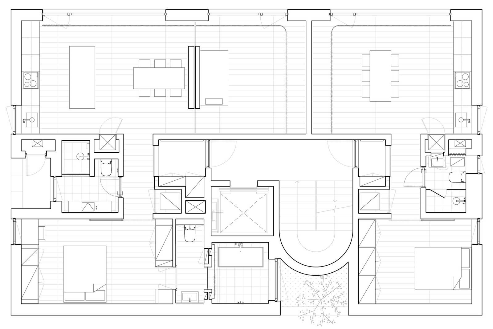
  • Third-level plan | Raw House | Order Matter | STIRworld
    Third-level plan Image: Courtesy of Order Matter
  • Fourth-level plan | Raw House | Order Matter | STIRworld
    Fourth-level plan Image: Courtesy of Order Matter

Bansari: You established a universal grid across ceilings and floors, allowing walls and furniture to read as objects within a larger field. How does this framework alter one’s perception of scale and order, or even bring a sense of calm inside the house?

Order Matter: The grid is a quiet but powerful presence. It creates an underlying rhythm that holds the house together, so even as spaces change in size or character, they feel connected. It allows walls and furniture to be read as independent elements, as carefully placed objects rather than fixed boundaries. This gives the interiors a sense of lightness, almost as if things could be rearranged. For the inhabitants, this invisible order can bring a sense of calm. It reassures them that the house has a clear structure, that nothing is arbitrary.

  • Loft level plan | Raw House | Order Matter | STIRworld
    Loft level plan Image: Courtesy of Order Matter
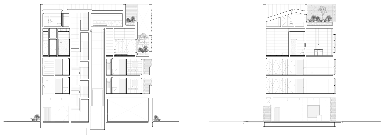
  • Sectional drawings | Raw House | Order Matter | STIRworld
    Sectional drawings Image: Courtesy of Order Matter

Bansari: Raw House resists performance; it is not a 'showpiece', as you state. In your opinion, what does the project say about your practice, your approach to sustainability and towards creating meaningful spaces in an overstimulated urban world?

Order Matter: Raw House expresses our belief that sustainability is as much about mindset as it is about technology. By working with materials honestly, by designing with care rather than abundance, we hope to build things that last, not just physically but emotionally. We are interested in spaces that grow with their inhabitants, rather than forcing a fixed way of living. In a world of overstimulation, we think architecture can offer clarity and focus. The project is a manifesto of sorts, to value what is essential, to trust the quiet power of order, and to make space for the things that truly matter.

What do you think?

About Author

Recommended

LOAD MORE
see more articles
7183,7184,7185,7186,7187

make your fridays matter

SUBSCRIBE
This site uses cookies to offer you an improved and personalised experience. If you continue to browse, we will assume your consent for the same.
LEARN MORE AGREE
STIR STIRworld London and Seoul-based practice Order Matter designs Raw House, a mixed-use development in Seoul | Raw House | Order Matter | STIRworld

Raw House by Order Matter is a retreat from excess amid dense Seoul

A meditation on spatial clarity, the mixed-use development prioritises exposed material finishes, minimal design and adaptable spaces.

by Bansari Paghdar | Published on : Dec 25, 2025