make your fridays matter with a well-read weekend

The Lab Saigon restores an old French villa in Vietnam into a modern matcha tea bar

Street-style seating, bespoke warm lighting and accents of vibrant green create a haven for matcha lovers in this century-old heritage structure.

by Pranjal MaheshwariPublished on : Mar 21, 2026

Wellness, energy, ritual and a vibrant, photogenic green—Matcha has it all. Owing to its popularity on social media and the health-first lifestyle that’s making waves in the urban population, especially the younger generation, the beverage has quickly seeped into the lanes of Vietnam, a country widely known for its deep-rooted obsession with coffee. While matcha is making its way into the menus of both high-end hospitality and local cafes, its ceremonial spirit is yet to make a home in a nation where its street coffee culture turns every nook and corner abuzz with conversations and community gatherings.

Matte Matcha & Teabar Flagship offers a traditional matcha experience to modern enthusiasts | The Lab Saigon | STIRworld
Matte Matcha & Teabar Flagship offers a traditional matcha experience to modern enthusiasts Image: Phu Dao

To a population caught between traditional routine and ritual curiosity, Matte Matcha & Teabar Flagship blends the ceremonial spirit of the Japanese beverage with modern convenience. Their largest flagship tea bar in Ho Chi Minh City, designed by Vietnamese interior architecture and brand design studio The Lab Saigon, is nestled in a restored French villa, revising the legacy of the same colonisers who introduced coffee in Vietnam. By creating warm and inviting spaces through bespoke lighting and contrast, the teahouse offers matcha’s traditional umami flavour as a conversational aide, a modern, yet authentic speciality, or a ceremonial retreat.   

  • Exploded axonometric of the Matte Matcha & Teabar Flagship | Matte Matcha & Teabar Flagship | The Lab Saigon | STIRworld
    Exploded axonometric of the Matte Matcha & Teabar Flagship Image: Courtesy of The Lab Saigon
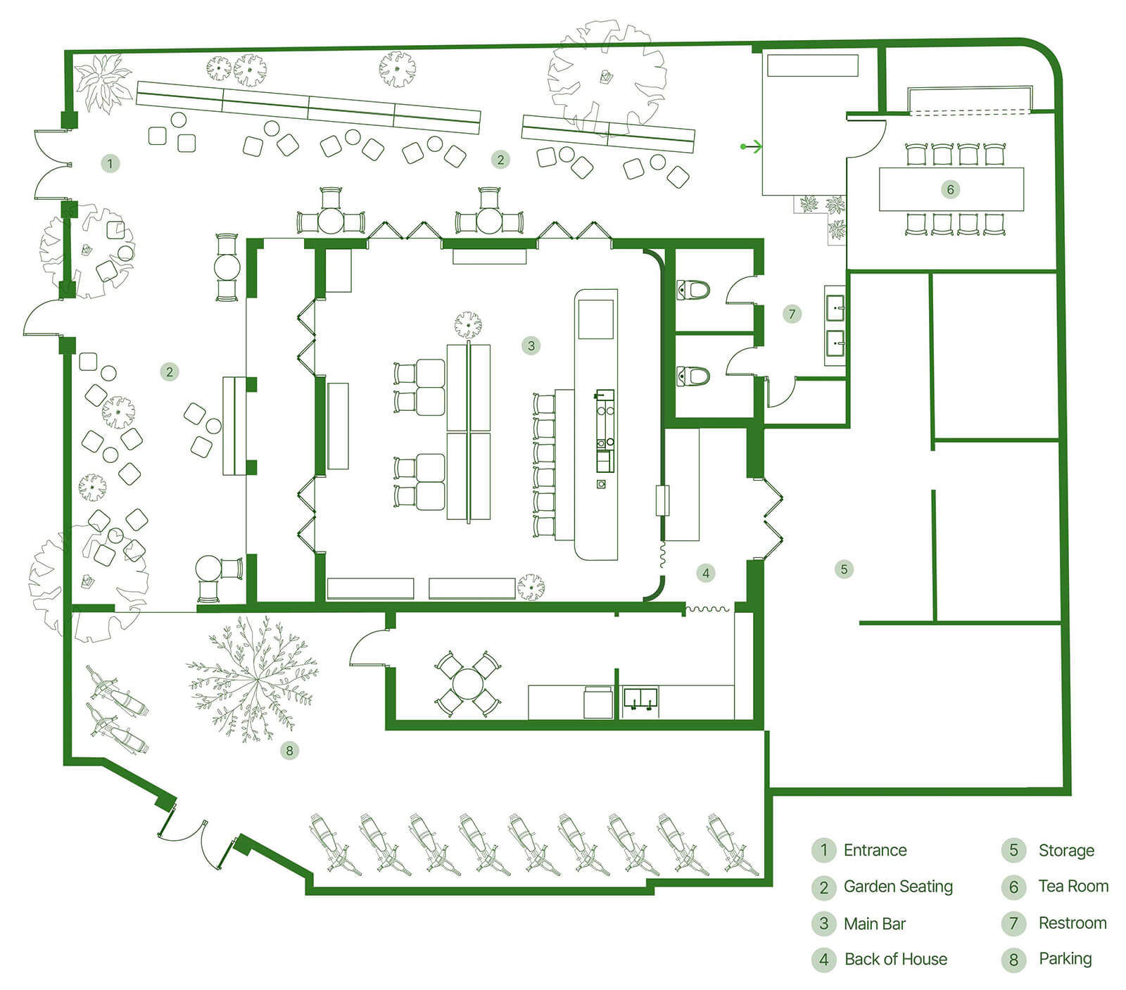
  • Floor Plan: Matte Matcha & Teabar Flagship | Matte Matcha & Teabar Flagship | The Lab Saigon | STIRworld
    Floor Plan: Matte Matcha & Teabar Flagship Image: Courtesy of The Lab Saigon
  • The original villa featured a garden in the patio and an elaborate timber roof in the main structure | Matte Matcha & Teabar Flagship | The Lab Saigon | STIRworld
    The original villa featured a garden in the patio and an elaborate timber roof in the main structure Image: Courtesy of The Lab Saigon

Tucked away in a quiet residential neighbourhood of Xuan Hoa ward, known as Ho Chi Minh’s cultural and historic centre, the tea bar stands unassumingly, until you spot a swinging green cat announcing ‘Matte’ from the corner of your eye. The whimsical signage—a derivative of the neighbourhood’s 20-or-so feline inhabitants—invites you into the 100-year-old French house that now hosts the tea bar’s bright green spirit. An open, green outdoor garden welcomes visitors into the villa, as it has for over the last century. The open patio is dotted with low-height furniture spread across multiple, flexible seating arrangements. Resonating with Vietnam’s bustling street coffee shops, the space provides an open outdoor area to savour speciality tea and enjoy a conversation. The villa itself stands as a plain white backdrop, with occasional dashes of green wall lamps inspired by the form of a bamboo chasen. 

  • The swinging green cat welcomes passersby from the crosswalk into the Matte Matcha & Teabar Flagship  | Matte Matcha & Teabar Flagship | The Lab Saigon | STIRworld
    The swinging green cat welcomes passersby from the crosswalk into the Matte Matcha & Teabar Flagship Image: Phu Dao
  • The outdoor garden mirrors the Vietnamese street coffee culture with low-height casual seating | Matte Matcha & Teabar Flagship | The Lab Saigon | STIRworld
    The outdoor garden mirrors the Vietnamese street coffee culture with low-height casual seating Image: Phu Dao
  • The garden seating caters to the Vietnamese’s love of outdoor spaces | Matte Matcha & Teabar Flagship | The Lab Saigon | STIRworld
    The garden seating caters to the Vietnamese’s love of outdoor spaces Image: Phu Dao
  • The century-old French villa stands as a white backdrop with the accent of Matte’s bespoke green lamps | Matte Matcha & Teabar Flagship | The Lab Saigon | STIRworld
    The century-old French villa stands as a white backdrop with the accent of Matte’s bespoke green lamps Image: Phu Dao

For a more elaborate but modern matcha experience, the garden leads into the main bar. Inside, the restoration has preserved the gracefully weathered exposed brick and raw finish of the original timber roof, in which the designers—known for their experiential marketing and themed spatial designs—avoided extravagant schemes. Instead, they opted for sensitive lighting to accentuate the existing textures of the old masonry construction while employing the use of contrast to highlight the brand’s presence. Bare brick walls are softened by tapestries dyed in shades of matcha green, while warm wooden furniture and fittings carry accents of Matte’s signature hue, setting it against the house’s otherwise seasoned aesthetic.

  • The main tea bar retains its exposed brickwork on walls, further accentuating the textural depth with a warm lighting scheme | Matte Matcha & Teabar Flagship | The Lab Saigon | STIRworld
    The main tea bar retains its exposed brickwork on walls, further accentuating the textural depth with a warm lighting scheme Image: Phu Dao
  • The earthy texture of exposed brick is offset by plain finishes and accents of Matte’s signature green | Matte Matcha & Teabar Flagship | The Lab Saigon | STIRworld
    The earthy texture of exposed brick is offset by plain finishes and accents of Matte’s signature green Image: Phu Dao
  • The heritage structure comprises a patterned tile floor, enclosed by masonry brick walls and topped by an elaborate timber roof structure | Matte Matcha & Teabar Flagship | The Lab Saigon | STIRworld
    The heritage structure comprises a patterned tile floor, enclosed by masonry brick walls and topped by an elaborate timber roof structure Image: Courtesy of The Lab Saigon

The only interventions include the central tea bar and partitions, installed as large, monolithic blocks with their plain smoothness offsetting the tactile depth of the heritage structure. A long hanging light glows warmly over the counter, which is covered in textured paper and decorated with a rectangular grid pattern—possibly projected from the roof structure above. The bar serves a curated menu of signature drinks, speciality matcha, desserts and pastries, while offering tasting notes and a direct view of the entire preparation.

Warm lighting diffused by a textured screen lends a calming, intimate ambience to the Matte Matcha & Teabar Flagship | Matte Matcha & Teabar Flagship | The Lab Saigon | STIRworld
Warm lighting diffused by a textured screen lends a calming, intimate ambience to the Matte Matcha & Teabar Flagship Image: Phu Dao

For those committed to the authentic, ceremonial experience of matcha, a tea room is located in the annex, directly accessible from the garden. The small space features a long table, illuminated by Matte’s bespoke lighting design inspired by Chasen—the traditional bamboo whisk used to prepare Matcha tea—lending it an intimate, spiritual ambience. This room regularly hosts gatherings and workshops for traditional Japanese tea ceremonies, demonstrations and tastings.

The tea room offers an intimate space for tea ceremonies and workshops under Matte’s bespoke chasen light | Matte Matcha & Teabar Flagship | The Lab Saigon | STIRworld
The tea room offers an intimate space for tea ceremonies and workshops under Matte’s bespoke chasen light Image: Phu Dao

Matte Matcha & Teabar Flagship is a quiet escape, a transition from bustling urban chaos into soothing relaxation, as you slowly savour the happy-coloured health beverage. Through minimal intervention, The Lab Saigon infuses Vietnam’s French architectural heritage with the cosy ambience of the teahouse, asking, much like the brand, to ‘Chotto Matte’, or ‘slow down’, even if it is for a moment.

Project Details

Name: Matte Matcha & Teabar Flagship
Location: Xuan Hoa ward, Ho Chi Minh City, Viet Nam
Typology: Teahouse
Client: Matte Tea Bar
Architect: The Lab Saigon
Collaborators:
Area: 370 sq m
Year of Completion: 2025

What do you think?

About Author

Recommended

LOAD MORE
see more articles
7117,7118,7119,7120,7121

make your fridays matter

SUBSCRIBE
This site uses cookies to offer you an improved and personalised experience. If you continue to browse, we will assume your consent for the same.
LEARN MORE AGREE
STIR STIRworld Matte Matcha & Teabar Flagship is a matcha sanctuary hidden in a restored French villa in Vietnam | Matte Matcha & Teabar Flagship | The Lab Saigon | STIRworld

The Lab Saigon restores an old French villa in Vietnam into a modern matcha tea bar

Street-style seating, bespoke warm lighting and accents of vibrant green create a haven for matcha lovers in this century-old heritage structure.

by Pranjal Maheshwari | Published on : Mar 21, 2026